Иван Никитко - Водоснабжение, канализация и отопление загородного дома
- Название:Водоснабжение, канализация и отопление загородного дома
- Автор:
- Жанр:
- Издательство:Издательство «Питер»046ebc0b-b024-102a-94d5-07de47c81719
- Год:2013
- Город:Санкт-Петербург
- ISBN:978-5-496-00463-3
- Рейтинг:
- Избранное:Добавить в избранное
-
Отзывы:
-
Ваша оценка:
Иван Никитко - Водоснабжение, канализация и отопление загородного дома краткое содержание
Налаженное функционирование систем водоснабжения, канализации и отопления – это комфорт и удобство всех проживающих в доме. И если даже не требуется вашего непосредственного участия в монтажных работах (практически все действия подобного типа должны выполняться специалистами, имеющими соответствующие лицензии), все равно необходимы пристальное внимание и контроль. Ведь от того, как будут налажены эти системы, зависит многое, в том числе и уровень эксплуатационных расходов. Поэтому будьте внимательны, подходите к вопросам водоснабжения, канализации и отопления со всей тщательностью и ответственностью. И пусть в вашем доме будет тепло и уютно.
Водоснабжение, канализация и отопление загородного дома - читать онлайн бесплатно ознакомительный отрывок
Интервал:
Закладка:
Самый большой минус жидкотопливного котла – высокая цена на топливо. Сэкономить его помогает установка двухступенчатой горелки. Она может работать и на полной, и на частичной мощности, в то время как одноступенчатая горелка работает только на полной мощности, а температура теплоносителя регулируется с помощью включения/выключения. Изменение мощности двухступенчатой горелкой позволяет сэкономить несколько сотен литров солярки за отопительный сезон, а вот включение/отключение одноступенчатой горелки приводит к перерасходу топлива – за счет большого расхода на первоначальный впрыск. Обычно двухступенчатыми горелками оснащаются котлы с мощностью, превышающей 40 кВт.

Рис. 3.8.Типовые бойлеры с трубчатым теплообменником
Особое внимание рекомендуется уделить топливному баку – самый простой «девайс» жидкотопливного котла может принести массу неприятных неожиданностей, если отнестись к нему с небрежностью.
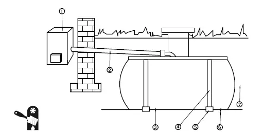
Возможно несколько вариантов расположения топливного бака: на одном уровне с насосом, выше и ниже котла. Если бак располагается выше насоса, то топливо в горелку может поступать под действием силы тяжести (самотечная схема, аналогичная гравитационной схеме циркуляции теплоносителя). Если же бак располагается ниже котла, то следует предусмотреть специальный насос, который будет подавать топливо из бака к котловой горелке. Нередко владельцы загородных домов предпочитают закапывать топливные баки в грунт – таким образом экономится место в помещении (а бак, вмещающий 3–4 тонны топлива, а то и больше, требует немало места), а также обеспечивается определенная безопасность в хранении топлива (Рис. 3.9).

Рис. 3.9.Топливный бак для жидкотопливного котла, расположенный в грунте: 1 – котел; 2 – топливопровод; 3 – топливный бак; 4 – стропы; 5 – закладные; 6 – бетонная подушка; 7 – обсыпка
Если топливный бак устанавливается в грунт, то его следует тщательно проверить на наличие/отсутствие повреждений. Котлован для бака должен быть таких размеров, чтобы оставалось не менее 20 см с каждой стороны бака для засыпки смесью песка и цемента (на 5 частей песка берется 1 часть цемента). На дне котлована необходимо соорудить бетонную подушку (толщиной 20 см). Для того чтобы исключить смещение бака под воздействием грунтовых вод (особенно если они располагаются высоко), его прикрепляют к бетонной подушке бандажными тросами. Глубина установки топливного бака должна быть такой, чтобы топливопровод прокладывался ниже глубины промерзания грунта (в противном случае в холодное время года возможны неприятные неожиданности – солярка густеет при низких температурах), но при этом все равно следует предусмотреть утепление топливопровода, тем более что он не на всем своем протяжении располагается ниже уровня промерзания грунта.
Выбирая топливный бак, нужно обратить внимание не только на его объем, но и на устойчивость к коррозии (особенно если планируется установка бака в грунт), а также на устойчивость к механическим нагрузкам (для баков, расположенных в грунте, этот критерий является одним из решающих). Рынок предлагает топливные баки из различных материалов: из стали, полиэтилена, армированного стеклопластика, комбинированные и т. д. При выборе проконсультируйтесь со специалистом, который подскажет, какой именно топливный бак будет оптимальным для ваших конкретных условий эксплуатации. Будьте внимательны: несмотря на то что топливный бак стоит относительно недорого (от $250 и выше – в зависимости от объема и материала, из которого он изготовлен), его замена – дело сложное, особенно если вы хотите, чтобы бак был установлен в грунте.
Ведущие производители жидкотопливных отопительных котлов предлагают дополнительное оборудование, с помощью которого можно автоматизировать весь отопительный процесс, в том числе и осуществлять защиту котельного оборудования от нежелательных и опасных режимов работы. Выпускаются датчики, которые могут регулировать работу котла, исходя из температуры не только в помещении, но и даже на улице. Жидкотопливный котел, оснащенный таким оборудованием, может выполнять функции «Умный дом», поддерживая комфортную температуру в помещениях без участия человека. Специалисты рекомендуют использовать системы автоматики производства той же компании, что и основное котельное оборудование.
Недавно на российском рынке появились конденсационные дизельные котлы, которые за счет высшей теплоты сгорания топлива используют для работы меньше солярки, чем стандартные жидкотопливные (по отношению к стандартным жидкотопливным котлам конденсационные являются аналогом пиролизных котлов по отношению к обычным твердотопливным). Применение различных новаторских технических решений в конструкции конденсационных дизельных котлов позволяет сэкономить до 25 % топлива, что существенно повышает привлекательность жидкотопливных котлов такого типа. При этом гарантийный срок эксплуатации составляет 20 лет. Интересно еще и то, что дизельная горелка для конденсационного котла комплектуется специальным защитным кожухом, что позволяет котлу работать практически бесшумно (то есть устраняется еще один недостаток обычного жидкотопливного котла – шумность работы).
Еще один вариант экономии топлива для жидкотопливного котла – использование турбоциклонных горелок, которые выпускаются некоторыми производителями котлового оборудования. С помощью таких горелок происходит полное сгорание топлива, при этом сжигаются и угарный газ, и окиси азота, и другие вещества, которые образуются при горении жидкого топлива, в результате топлива требуется меньше, а также возрастает экологичность жидкотопливного котла – вредные вещества, образующиеся в процессе горения, вместо того чтобы выбрасываться в атмосферу, сгорают, увеличивая эффективность работы котла. Пока лишь немногие производители котлового оборудования предлагают турбоциклонные горелки для своих котлов, но они уже имеются на российском рынке.
Следует заметить, что, хотя традиционным топливом для жидкотопливного отопительного котла считается солярка, такие котлы могут работать и на других видах жидкого топлива: мазуте, отработанных маслах, смеси нефтяных и биомасел, печном топливе и т. д. При этом в дымогарные каналы дизельных котлов устанавливаются турбуляторы из нержавеющей стали (для создания турбулентного потока, что позволяет улучшить теплопередачу и повысить эффективность работы котлового оборудования), а при переходе на отработанные масла они демонтируются (Рис. 3.10). Демонтирование турбуляторов при работе котла на отработанных маслах, мазуте и газомазутных смесях необходимо, так как в этом случае приходится часто очищать дымогарные каналы.
Читать дальшеИнтервал:
Закладка: