Иван Никитко - Водоснабжение, канализация и отопление загородного дома
- Название:Водоснабжение, канализация и отопление загородного дома
- Автор:
- Жанр:
- Издательство:Издательство «Питер»046ebc0b-b024-102a-94d5-07de47c81719
- Год:2013
- Город:Санкт-Петербург
- ISBN:978-5-496-00463-3
- Рейтинг:
- Избранное:Добавить в избранное
-
Отзывы:
-
Ваша оценка:
Иван Никитко - Водоснабжение, канализация и отопление загородного дома краткое содержание
Налаженное функционирование систем водоснабжения, канализации и отопления – это комфорт и удобство всех проживающих в доме. И если даже не требуется вашего непосредственного участия в монтажных работах (практически все действия подобного типа должны выполняться специалистами, имеющими соответствующие лицензии), все равно необходимы пристальное внимание и контроль. Ведь от того, как будут налажены эти системы, зависит многое, в том числе и уровень эксплуатационных расходов. Поэтому будьте внимательны, подходите к вопросам водоснабжения, канализации и отопления со всей тщательностью и ответственностью. И пусть в вашем доме будет тепло и уютно.
Водоснабжение, канализация и отопление загородного дома - читать онлайн бесплатно ознакомительный отрывок
Интервал:
Закладка:
Трубопроводы тепловых сетей выполняются из стальных труб диаметром 0,025–0,4 м, устанавливаемых с уклоном 0,002. Вверху размещаются воздухоспусковые устройства, а внизу – дренажные спуски. Запорная арматура располагается на каждом из ответвлений трубопроводов в точках присоединения к магистрали и отдельному зданию.
Внешняя часть теплотрассы (если она требуется – в случае подключения к централизованному источнику) выполняется специалистами, а вот внутренняя требует пристального внимания домовладельца, так как внутри дома система отопления состоит из котла, трубопроводов и радиаторов и от выбора этих элементов зависит не только качество и стоимость сооружения системы теплоснабжения, но и долговременность ее работы, а также – что очень важно – стоимость эксплуатации.
Планируя систему отопления, следует задуматься, какова она будет: с естественной или принудительной циркуляцией теплоносителя.
В системах с принудительной циркуляцией теплоносителя (это может быть как вода, так и антифриз) теплоноситель движется по трубам и отопительным радиаторам под действием циркуляционного насоса. Системы с естественной циркуляцией еще называют гравитационными, так как теплоноситель при подобной схеме осуществляет движение под действием силы тяжести, за счет разницы плотности теплоносителя в подающей и обратной линиях, так как в подающей линии теплоноситель горячий, а в обратную поступает уже остывшим, холодным. Но при этом отопительные приборы должны располагаться выше котла хотя бы на 0,5 м, то есть при использовании гравитационной системы отопления практически невозможно или очень сложно обеспечить отопление того этажа, где расположен котел. Поэтому котел приходится располагать в подвале или гараже (если первым уровнем дома является гараж), при этом данные помещения будут неотапливаемыми.
Система с естественной циркуляцией теплоносителя имеет существенный плюс: она не является электрозависимой и работает исключительно за счет наличия разницы температур (соответственно – плотности) в подающей и обратной линиях. Но конструктивные особенности этой системы таковы, что она подходит только для небольших зданий (максимальная общая отапливаемая площадь – 150 м 2) при наличии не более двух отапливаемых уровней. Если ваш загородный дом больше, то о системе с естественной циркуляцией можно не думать – она не будет работать.
Но даже если площадь дома невелика и позволяет установить систему с естественной циркуляцией теплоносителя, следует знать, что для нее необходимы трубы с большим сечением (минимально диаметром 50 мм) – они позволяют теплоносителю свободно циркулировать, но являются довольно дорогими. Чем меньше диаметр трубы, тем выше гидравлическое сопротивление системы (Рис. 3.1), а с повышением гидравлического сопротивления понижается скорость протока теплоносителя и увеличивается скорость остывания теплоносителя в отопительной системе (возрастает разница температур между теплоносителем в системе и котле). Иначе говоря, при меньшем диаметре трубы теплоноситель нуждается в более интенсивном подогреве, и, как следствие, котел расходует больше топлива.

Рис. 3.1.Зависимость напора от разницы температур в отопительной системе с естественной циркуляцией теплоносителя (мощность котла и температура подачи теплоносителя фиксированы)
Обратите внимание на рабочую точку при различных диаметрах труб (см. Рис. 3.1). Рабочая точка – это такой режим работы отопительного котла, при котором напор, обусловленный наличием разницы температур теплоносителя в подающей и обратной линиях (ΔТ), становится равным гидравлическому сопротивлению котла. Чем ниже на рисунке располагается рабочая точка (то есть чем меньше гидравлическое сопротивление и чем больше диаметр труб), тем быстрее котел выходит на рабочий режим. До этого происходит перерасход топлива (за счет необходимости интенсивного прогрева всего теплоносителя в отопительной системе), и чем дольше отопительная система работает в «предварительном» режиме, тем более снижается срок службы отопительного котла. Так что использование при естественной циркуляции теплоносителя труб малого диаметра – это экономия на монтаже системы, но потеря денег в процессе эксплуатации за счет снижения срока службы котла и постоянного перерасхода топлива. А использование труб большого диаметра приводит к удорожанию всей отопительной системы почти в два раза.
Кроме того, при разводке отопительной схемы с естественной циркуляцией теплоносителя требуется со всей точностью соблюдать углы уклонов (то, что не слишком любят делать наши специалисты, и то, что требует наличия дорогостоящих материалов и оборудования).
Одним из главных минусов системы с естественной циркуляцией теплоносителя является использование открытого расширительного бака (такой бак необходим, чтобы компенсировать тепловое расширение теплоносителя) (Рис. 3.2). Результатом являются насыщение теплоносителя кислородом и, как следствие, повышенная опасность коррозии для отопительных труб и радиаторов. Кроме того, с открытым расширительным баком в качестве теплоносителя не рекомендуется использовать антифризы, так как большинство из теплоносителей такого типа ядовито.
Еще один минус – открытый расширительный бак устанавливается в самой высокой точке отопительной системы (обычно его устанавливают на чердаке), а это означает определенное обустройство помещения для размещения бака плюс усиление перекрытий, то есть дополнительные расходы при монтаже.
Из расширительного бака открытого типа вода может выплескиваться на пол. Для того чтобы этого не происходило, можно установить бак, в котором предусмотрен слив излишков воды, но дополнительную емкость, в которую сливается лишняя вода, нужно регулярно проверять, чтобы она не переполнялась (обычно для этой цели ставят ведро, которое периодически опорожняется).

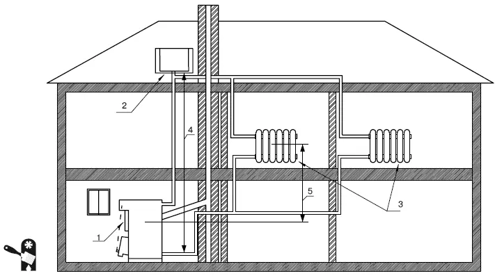
Рис. 3.2.
Гравитационная отопительная система с расширительным баком открытого типа:1 – отопительный котел; 2 – расширительный бак; 3 – отопительные приборы; 4 – высота расположения расширительного бака относительно котла; 5 – высота расположения отопительных приборов относительно котла
В системе с естественной циркуляцией теплоносителя может быть использован и закрытый расширительный бак (мембранный), но такое устройство требует дополнительного оборудования (например, необходимы предохранительный клапан, манометр, системы воздухоотвода и т. д.), поэтому для гравитационной системы мембранный бак используется редко.
Читать дальшеИнтервал:
Закладка: