Евгений Карнаухов - Телевизионные антенны. Индивидуальное водяное отопление...(Сделай сам №3-4∙1993)
- Название:Телевизионные антенны. Индивидуальное водяное отопление...(Сделай сам №3-4∙1993)
- Автор:
- Жанр:
- Издательство:Знание
- Год:1993
- Город:Москва
- ISBN:5-07-002637-2
- Рейтинг:
- Избранное:Добавить в избранное
-
Отзывы:
-
Ваша оценка:
Евгений Карнаухов - Телевизионные антенны. Индивидуальное водяное отопление...(Сделай сам №3-4∙1993) краткое содержание
Вторая статья дает исчерпывающую информацию об индивидуальном водяном отоплении, о преимуществах такого отопления по сравнению с печным, когда необходим обогрев нескольких помещений, вне зависимости от этажности.
Третья статья адресована нашим маленьким читателям. Из нее они узнают, как из материала, дарованного нам природой, сделать многие потешные, а то и серьезные самоделки.
Четвертая статья приоткроет секреты и тайны народной фитотерапии (траволечения).
Телевизионные антенны. Индивидуальное водяное отопление...(Сделай сам №3-4∙1993) - читать онлайн бесплатно полную версию (весь текст целиком)
Интервал:
Закладка:
После навески положение радиатора проверяют по вертикали отвесом. Его нить должна совмещаться с центрами нижней и верхней пробок крайней секции радиатора. Горизонтальность радиатора подтвердит совпадение нити с ребром средней секции. В какой-то мере горизонтальность радиатора покажет и уровень, уложенный прямо на верхушки секций Но литье имеет прыгающие размеры, поэтому предпочтительно уровень водрузить на доску, охватывающую все верхушки секций.
Отдельно остановимся на разнообразных элементах, крепящих радиаторы в зависимости от числа секции, фундаментальности стены и т. п. С конструктивной точки зрения крепления можно подразделить на цельные (рис. 23, а ) и составные (рис. 22).

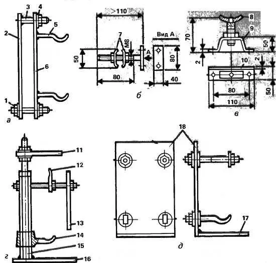
Рис. 22. Кронштейн с составной опорой для радиаторов и регистров при стенах облегченной конструкции:
1— крюк; 2— гайка; 3— стержень; 4— основание; 5— опора
По применению — на настенные (рис. 23, а ), поддерживающие (рис. 23, в ), комбинированные (рис. 23, г ). Последние используются, когда стене не удержать ни планку, ни кронштейн или когда захотят разместить радиатор не у стены.

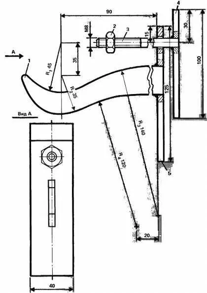
Рис. 23. Крепления для чугунных радиаторов:
а — кронштейн с цельной опорой для стен облегченной конструкции; б — планка для деревянных и кирпичных стен; в — подставка; г — стойка; д — металлическая конструкция; 1— гайка; 2— опора; 3— стержень; 4— шайба; 5— крюк; 6— основание; 7— зажимы; 8— упор; 9— изогнутая полоса; 10— стенка; 11— декоративная крышка; 12— зажимная планка; 13— декоративный щит; 14— регулирующийся по высоте кронштейн; 15— корпус с наружной и внутренней резьбой; 16— плита; 17— стальное основание; 18— стальная стенка
При настенной навеске основная нагрузка радиатора приходится на нижние опоры, верхние лишь предохраняют радиатор от опрокидывания. Поэтому, предположим, планку монтируют на расстоянии 1/3 высоты радиатора (см. рис. 21, а ). Для выбора количества опор руководствуйтесь табл. 2.
По укрупненному расчету на 1 экм поверхности нагрева секций берется одна опора (см. табл. 1).
Бывает, что радиатор устанавливают в нише. Тогда удлините настолько консольные части опор, чтобы выглядывал радиатор из ниши (рис. 12, б , например). Это повысит теплопередачу прибора.
Ремонт радиаторов
Согласно ГOCT 8690—75 на наружной поверхности отливок не допускается., шлаковых включений… раковин глубиной более 1 мм и диаметром более 2 мм. По мере эксплуатации в ослабленных местах стенок возникают свищи. Основные причины — агрессивный состав циркулирующей воды, содержание отопительной системы в летний период без воды и т. п.
Через свищ или свищи проступает вода. Если это только влажное пятно, а возможно, слабое капание, не торопитесь бороться с течью. Не исключено, что выделяющиеся с водой соли затянут свищ. Терпите месяц-два, подставив под течь посудину. Но под свищ, скажем, в верхней бобышке секции и горлышко бутылки с трудом подсунешь. Поступите иначе: обвяжите это место длинной тряпицей, а ее конец опустите в посудину.
Не затягивающийся свищ можно оперировать. Главное, чтобы он был в месте, доступном для сверла дрели. Из радиатора спускается вода. С соблюдением всех правил техники безопасности, когда пользуетесь электродрелью, засверливайте свищ. Нарезаете в нем резьбу под имеющийся винт или болт. Заворачивайте болт на масляной краске, подвернув под головку прядь уплотнения.
Бывает свищ и в недоступном для механический обработки месте. В индивидуальных системах отопления, где практически давление отсутствует, из радиатора или всей системы спустите воду. Попытайтесь полоской хлопчатобумажном ткани, промазанной масляной краской, забинтовать дефект. Зимой не ждите подсыхания масляной краски, а наполняйте систему и затапливайте. На горячем радиаторе интенсивнее затвердевание краски. Вместо краски можно использовать эпоксидную смолу.
В системах с принудительной циркуляцией воды, где давление достигает нескольких MПа, прочны лишь механические способы ремонта. При их невозможности меняйте радиатор. Правда, еще есть способ заварки дефектов в чугуне. Но он мало осуществим. Нужен материал, специалист, сварка и т. д.
Гладкотрубные регистры
В них трубы соединяют двояко. Последовательной стыковкой образуем змеевиковую форму (см. рис. 8, д ), параллельной — регистровую (см. рис. 8, е ). Трубы применяются значительных диаметров: 60…120 мм. Расстояние между ними принимается не менее чем на 50 мм больше диаметра труб. То есть минимальный интервал равен Д трубы + 50 мм. На рис. 25 поэтому и даны интервалы в 230 и 250 мм. Такие расстояния уменьшают взаимное облучение и повышают теплопередачу, которая самая высокая у регистров. С них и почти мгновенно удаляется пыль.

Рис. 25. Крепления для регистров и чугунных радиаторов:
а— на деревянной стене гвоздями, на бетонной и кирпичной — дюбелями; б— заделкой в бетонные и кирпичные кирпичные стены (под регистры); в— заделкой в бетонные и кирпичные стены
Отрицательным у регистров является громоздкость, и они отнюдь не украшают интерьер. Несколько сглаживает их уродливость форм в виде декоративной решетки из труб максимального диаметра, используемых для главного стояка (50…60 мм).
Обычно регистры сваривают. Но можно соединить трубы и с помощью фитингов. При установке регистры обязательно должны иметь уклон не менее 0,01…0,03 в сторону патрубка, отводящего воду (см. рис. 10, б ).
Расширительные баки
Служат для: 1) приема дополнительного объема воды, возникающего из-за ее расширения при нагреве; 2) восполнения убыли воды из-за утечек, испарения и т. п.; 3) сигнализации об уровне воды в системе, что обеспечивает беспрестанную циркуляцию по отопительным приборам; 4) воздухоотделения.
В заводской комплект системы отопления для индивидуального жилого дома или квартиры расширительный бак обязательно входит. Но таких комплектов производится мало, и застройщику самому приходится компоновать систему.
Читать дальшеИнтервал:
Закладка: